Mon - Fr: 9:00 - 17:00

Aluminium Schiebetüren Schüco ASE80.HI

Einzigartiges Design in puncto Alu Schiebetüren mit Design Award und mehrfacher Auszeichnungen
Profilsystem Schüco ASE 80.HI

Eine Aluminium Schiebetür, die es in sich hat: Bis zu einem Uw-Wert von 0,8 W/m²K auf die Gesamt- Aluminium Schiebetür nach Normberechnung DIN EN 10077-1 möglich.

Alu Hebe - Schiebe Türen nach neuestem Stand der Technik, mit exzellenter Wärmedämmung! Aluminium Schiebetürsysteme – Das neueste Schüco ASE 80.HI Profilsystem.

Systemeigenschaften

Die Schüco ASE 80.HI Schiebetüren bieten als fortschrittliches Aluminium Profilsystem eine unvergleichbare Variantenvielfalt. Durch die Vielzahl an verfügbaren Rollen- und Flügelsystemen, kann diese Schiebetür mit Flügelgewichten von bis zu 500 kg ausgelegt werden. In Verbindung mit einer mehrgleisigen Führungsschiene, sind auch überdurchnittliche Konstruktionen in Höhe, Breite und Anzahl der Flügel möglich. Zusätzlich können mehrere Systeme aneinander gekoppelt werden und ganze Fassadenbereiche mit dem Komfort von Aluminium- Fenster und Schiebesystemen ausstatten. Durch die hohe Stabilität und der ausgefeilten Technik, sind Schüco Hebe-Schiebetüren der ASE 80.HI Serie, sowohl Kunststoff- als auch Holzkonstruktionen weit überlegen.

Wie bei allen Alu Fenstern , setzen wir auch bei unseren Schiebetüren höchste Anforderungen an die gesamte Konstruktion sowie der Verglasung. Alle Elemente werden mit Glasstärken von 4- 10 mm je Scheibenanforderung und einer warmen Kante ausgestattet.

Häufiger Verwendungszweck

Das Schüco ASE 80.HI Aluminium Profilsystem beeindruckt, genauso wie andere Schüco Aluminium Fenster Systeme, neben der hohen Stabilität und Witterungsbeständigkeit mit sensationellen Dämmwerten für Aluminium Schiebetüren dieser Klasse. Als technisches Meisterwerk, bietet dieses System mit einer Bautiefe von 180 – 250 mm (je nach Flügelanzahl) die perfekte Lösung für großflächige Öffnungen. Flügel- und Öffnungsbreiten von bis zu 6.000 mm und größer sind somit realisierbar. Des Weiteren sind durch das Schiebesystem ganz andere Bauhöhen der jeweiligen Alu Hebeschiebe Anlagen, wie z.B. 3500mm Höhe möglich. Hier setzen Aluminium Fenster Hebeschiebe Anlagen hohe Maßstäbe in Sachen Breiten- und Höhen Produktionsmöglichkeiten.

Konstruktionmöglichkeiten

Unzählige Konstruktionslösungen sind herstellbar- von der einfachen 1- Flügel Hebe- Schiebetür über 2-, oder 3- Flügel Varianten mit allen nutzbaren Flügeln bis hin zu 4- Fachen Stulp Schiebetüren mit Breiten über 10.000 mm. Zusätzlich ist durch die Kopplung mehrerer Elemente eine fast unendlich breite Fassade von Aluminium Schiebetüren möglich. > Beispielkonstruktionen

Entdecken Sie ein spannendes Video mit Alu Schiebetüren Schüco ASE60/80.HI

Jedes Fensterfeld im Element kann in der Öffnungsrichtung frei konfiguriert werden.

Glasarten

Standard:

– ISO 2-Fach Glas Ug 1,1  W/m²K – Glasaufbau : 4/16SZR/4 mm

– ISO 3-Fach Glas Ug 0,6  W/m²K – Glasaufbau: 4/16SZR/4/16SZR/4 mm

Sicherheitsverglasung:

- ISO 2-fach oder 3-fach Verglasung Ug 1,1 W/m²K - P1A 

- ISO 2-fach oder 3-fach Verglasung Ug 1,1 W/m²K - P2A 

- ISO 2-fach oder 3-fach Verglasung Ug 1,1 W/m²K - P4A 

- ISO 2-fach oder 3-fach Verglasung Ug 1,1 W/m²K - P5A 

- ISO 2-fach oder 3-fach Verglasung Ug 1,1 W/m²K - P6B 

- ISO 2-fach oder 3-fach Verglasung Ug 1,1 W/m²K - P7B

- ISO 2-fach oder 3-fach Verglasung Ug 1,1 W/m²K - P8B  

Des Weiteren sind Sicherheitsverglasungen von FB2 und mehr möglich. Diese Art Verglasung dient zu zwecken, wie ein Eingriff mit einer 9mm Pistole und eventuell auch stärkeren Waffen. Sprechen Sie uns an!

Besonderes Merkmal: Alle Verglasungen sind mit warmer Kante Thermix TX.N ausgestattet!

Sonderverglasung

– VSG und ESG Verglasungen nach Vorgabe (z.B. RC1 – RC4 und weitere).

– Absturzsichere Verglasung nach TRAV.

– Schalldämmglas für Luftschalldämmung bis Rw 48 dB.

 

Beschlagssystem

Der verdeckt liegende Schüco AvanTec SimplySmart Beschlag, ist eines der fortschrittlichsten Beschlagssysteme weltweit. Der Einsatz von Edelstahl gewährleistet eine hohe Korrosionsbeständigkeit. Der Beschlag kann beim Alu Fenster AWS75.BS.SI bis zur Widerstandsklasse RC2 ausgeführt werden. Mehr über Beschlag, Griff und Design erfahren?-> Hier klicken

Fenstergriff

Der optisch ansprechende und zeitlose Designgriff von Schüco, ist passend zum Beschlagsystem ausgelegt. Vielseitige Funktionalität, klares Design und optische Ästhetik runden das Gesamtbild der hochwertigen Alu Fenster undHaustüren ab. Wahlweise in Weiß oder Aluminium eloxiert. Mehr über Beschlag, Griff und Design erfahren? -> Hier klicken

Passender Sonnenschutz für Alu Fenster von Roma

Ob zum Einsatz in vorhandene Rollladenkästen im Neubau, in der Renovierung oder als ganzes Plug-&-Play System: Unsere Fenster- und Türelemente können beliebig mit unseren Rollladen Einzel-, Aufsatz- oder Vorbauelementen der Marke roma ausgestattet werden. Zum Einsatz kommen hochwertige Rollladenpanzer und Raffstorebehänge aus Aluminium Made in Germany, welche in verschiedenen Farbtönen verfügbar sind.

Bei unseren Komplettsystemen, richtet sich die Größe der Rollladen- und Raffstorekästen je nach Mauerwerk (Neubaukasten/ Aufsatzkasten) und Öffnungs- bzw. Fenstermaß. Unsere Technik errechnet das für den Einsatz optimale Ergebnis.

Die Bedienung der Rollladen und Raffstoren kann auf Wunsch elektrisch oder mechanisch erfolgen. Unsere umfassende Produktpalette bietet Einzel-, Funk-, oder Zentralsteuerung. Alle Sonnenschutzsysteme sind auch mit integriertem Fliegengitter erhältlich.

 

Profile

Genau wie sein Vorgänger, bietet das Schüco AWS 75 BS.SI Aluminium Fenstersystem alle notwendigen Anschluss- und Erweiterungsmöglichkeiten. Zu den gängigen Erweiterungsprofilen gehören Fensterbankanschlüsse, Eckpfosten mit thermischer Trennung, Blenrahmenverbreiterungen oder Basis- sowie Einstandsprofile für den Neubau. Unsere Techniker helfen Ihnen gerne mit den benötigten Anschlussprofilen weiter. Generell werden im Angebotsstatus bereits benötigte Profile von unserer Technik ermittelt und mit Ihnen abgestimmt.

 

Prospekt

Aluminium Fenster Prospekt hier downloaden.

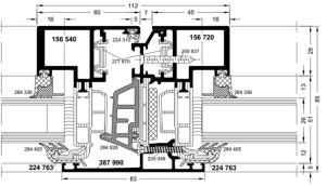
Querschnitt Profilbeispiel eines Alu Fenster AWS75.BS.SI

Blendrahmen

Stulp

Flügel

Systemkompatibilität

Schüco AWS 75 BS.SI Fenster- und Türelemente können durch Kopplungsprofile, mit anderen Schüco Aluminiumelementen zusammengeführt oder mit idealer Ansicht in Pfosten- Riegel Konstruktionen eingebettet werden.

Technisches Datenblatt
Rahmensystem

Schüco ASE80.HI

inkl. Polyamid/ Polythermid Isolierstegen

Optimierte Mitteldichtung mit Fahne

Vulkanisierte Eckdichtung

Systemmaße

Grundbautiefe Rahmen: 75 mm mm

Glasstärke: 20 – 44 mm

Wetterschutz

Luftdurchlässigkeit nach EN 12207 Klasse 4

Schlagregendichtheit nach EN 12208 Klasse 9a

Windlast C5/B5

Wärmedämmwerte

Normfenster DIN EN 10077-2 mit 3-Fach Verglasung

Fensterrahmen Uf 1,3 W/m²K

Fensterglas Ug 0,6 W/m²K – PSI Glasrand 0,045

Gesamtfenster Uw 0,90 W/m²K

Sonderverglasung

Sicherheitsglas: ESG, VSG oder TRAV für Absturzsicherung oder Einbruchshemmung

Schallschutzglas: Als Verbundglas zur Reduzierung des db

Sonnenschutzglas: Stop-Sol mit Farbbeschichtung

Farbglas: Top N+ oder Planibel Verglasung mit Farbton als dekorative Lösung

Einbruchshemmung

2 Sicherheitsverriegelungen – Standard

RC1 / RC2 / RC3 – optional

Beschlag

Schüco AvanTec SimplySmart Beschlag (verdeckt liegender Beschlag im Flügel)

Rollen-Pilzbolzen mit integrierter Höhenverstellung, 2-Punkt-Sicherheitsverschluss, umlaufende Rollenbolzen, Flügelheber

Oberflächen

Pulverbeschichtet, Eloxiert, Foliendekor

Farben

Standard: Alu Fenster Weiß

Optional: alle RAL Farben, E6/EV1 (Eloxal) oder Holzdekor